Öffentliche Gebäude


Neubau eines Vereinsgebäudes für den SV Gartenstadt

Direktauftrag

Fläche: 250 m² BGF


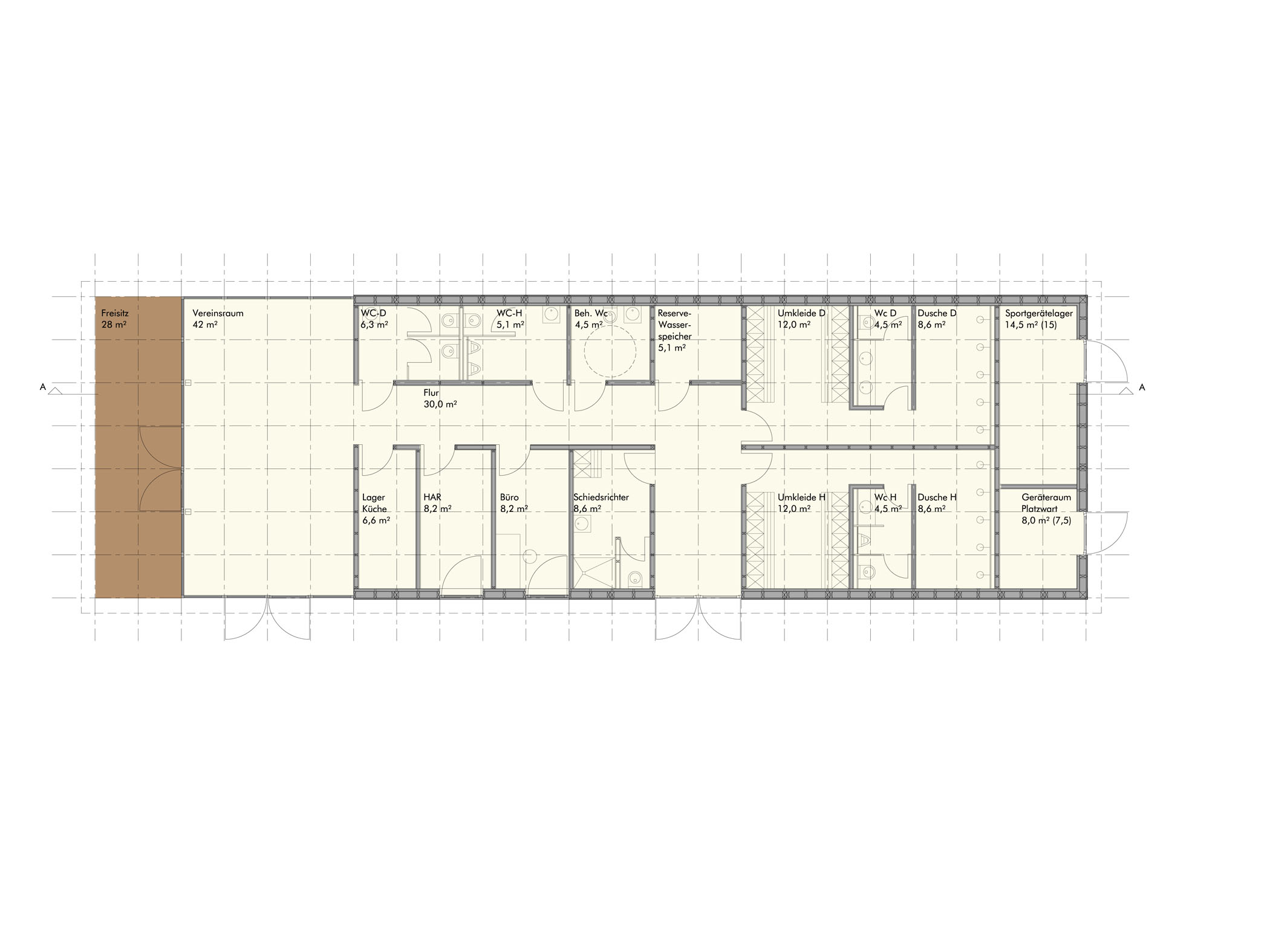
2012 beschloss die Stadt Braunschweig, die Unterkünfte einiger Sportvereine zeitgemäß neu zu errichten. Die Bauaufgabe bestand darin, ein modulares System zu finden, welches auf die unterschiedlichen Anforderungen der Vereine reagiert und kostengünstig realisiert werden kann. Dieser neue Systembau basiert auf einer Holzrahmenbauweise mit einem 1,25 m breiten Modul und beinhaltet Umkleiden, Duschen, Sanitärräume sowie einen Seminarraum, dazu ein Büro und ein Sportgerätelager. Bisher wurden in Braunschweig vier dieser Vereinsheime realisiert.


Bauherr: Stadt Braunschweig, Fachbereich Stadtgrün u. Sport