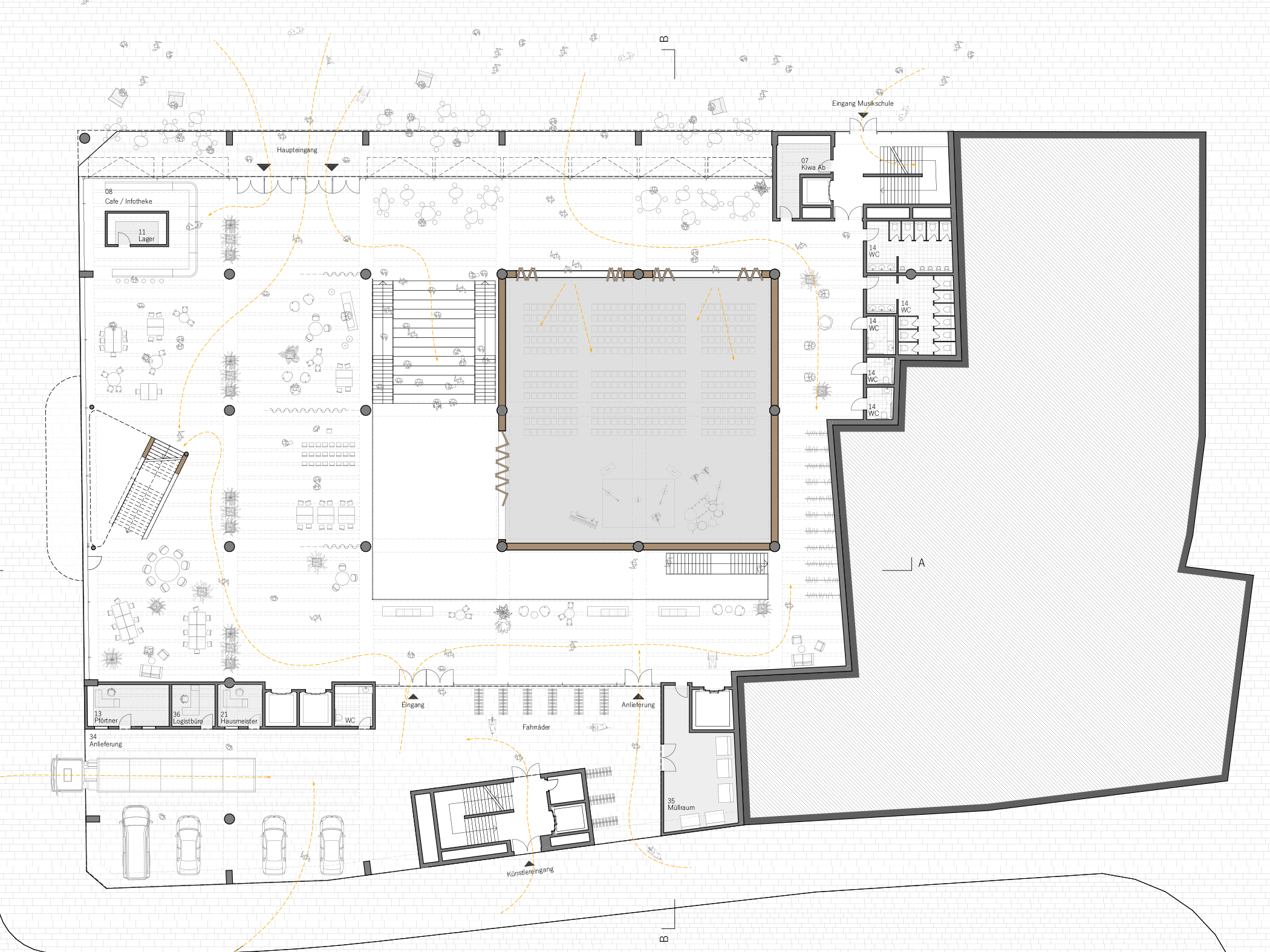
Öffentliche Gebäude


"Haus der Musik"

Musikschule und Konzertsaal in Braunschweig

Umbau eines ehemaligen Kaufhausgebäudes

Hochbaulicher Realisierungswettbewerb


Bauherr: Familie Knapp, unterstützt durch die Stadt Braunschweig